中部商事株式会社

HOME > 不動産を買いたい

中古住宅

閑静な住宅街で、駐車4台可能♪間取りを考えたリフォーム済中古住宅です♪是非一度ご覧ください♪

所在地
安曇野市三郷明盛 3361-8

価格 1880 万円

土地面積公簿  256.34㎡ (77.54坪)

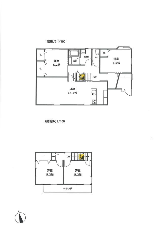
間取り4LDK

建物面積107.8㎡(32.6坪)

担当者より

/

所在地 安曇野市三郷明盛 3361-8 建物名
価格 1880万円 消費税内税額
土地面積 公簿  256.34㎡ (77.54坪) 建物面積 107.8㎡(32.6坪)
間取 4LDK 構造 軽量鉄骨造
詳細間取 その他一時金
総階数 2階  完成年月 1979年2月
湯権 下水道 公共下水道
通学区 安曇野市立三郷小学校 (2100m)
安曇野市立三郷中学校 (1900m)
引渡/入居日 相談
手数料 私道負担面積
接道状況 方角:東南 公私区分:公道 
設備 システムキッチン・カウンターキッチン・火災警報器(報知機)・TVモニタ付きインターホン・ディンプルキー・温水洗浄便座・オートバス・追焚機能・BT別室・エアコン・バリアフリー・閑静住宅街・リフォーム済み・上水道・給湯・洗髪洗面化粧台・出窓・照明器具付き・電気・プロパンガス・下水道・複層ガラス
駐車場   4台可 
施工会社
交通 電車: 大糸線中萱駅 距離900m 徒歩11分 
備考 上下水道有、プロパンガス、境界立ち合い済、固定資産税年/29,225円(令和7年分)
リフォーム内容(屋根、外壁等塗装・玄関戸交換・モニターホン設置・一部窓交換・一部インナーサッシ設置・エアコン1台設置・クロス張替え・間取り変更・CF張替え・玄関ポーチ張替え・下駄箱交換・照明交換・システムキッチン・背面収納・洗面台・トイレ、ユニットバス交換・網戸張替・外構整地・一部砕石敷・下水道接続・給水管一部・不凍栓一部交換・フローリング上張り、建具等交換・TVアンテナ設置・ガス給湯器交換・ベランダ床張り替え・ブレーカーボックス・スイッチ等交換・カーテンレール交換・火災報知器設置・全室クリーニング
管理番号 取引態様 媒介
最終更新日 2026-03-05

マップ

※物件位置が表示されていない場合もあります。 正確な位置は取り扱い会社へお問い合わせください

物件のお問い合わせ

物件情報 物件番号:449997 / 中古住宅 / 安曇野市三郷明盛3361-8 / 価格:1880万円
お名前 必須
電話番号 必須
FAX
※FAXで資料送付をご希望の方は、必ず入力してください。
メールアドレス 必須
資料送付先 郵便番号 
住所 
※郵送で資料送付をご希望の方は、必ず入力してください。
お問い合わせ種別 資料をメールで送ってほしい
資料をFAXで送ってほしい
資料を郵送してほしい
現地を見てみたい
電話で聞きたい
ご質問内容
ご希望の条件、ご予算、その他質問事項があればご記入ください

※お使いのメールサービス、メールソフト、ウィルス対策ソフト等の設定により「迷惑メール」と認識され、メールが届かない場合があります。(特にgmailやYahoo!メールなどのフリーメールをお使いの方)
その場合は「迷惑メールフォルダー」等をご確認いただくかお使いのサービス、ソフトウェアの設定をご確認ください。

お問い合わせ

メールでのお問い合わせ

長野県松本市寿南1丁目34番3号オフィス田川2F
TEL:0263-86-3977/FAX:0263-86-3976
長野県知事(12)第2081号

© 2026 chubu-shoji.